Herndon Road, Wandsworth, SW18 - £595,000
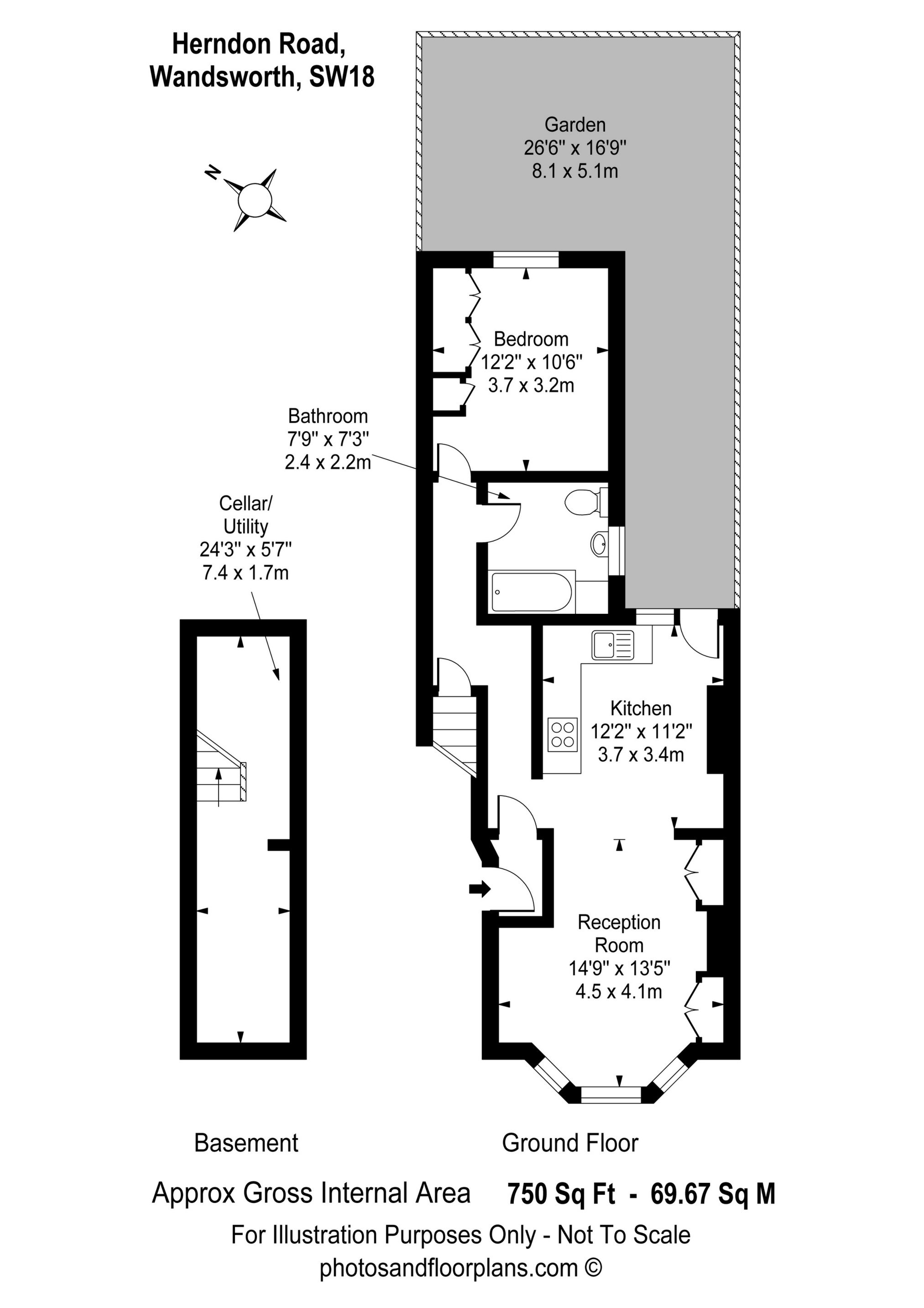
A beautiful one bedroom Victorian conversion flat, offering further potential to extend is now for sale on Herndon Road. The property is in immaculate condition and is very light and spacious. The accommodation features a lovely reception room with sash bay window which opens on to a contemporary styled kitchen/breakfast room with door directly to the garden. There is also a spacious double bedroom and good size bathroom. This property also has a very useful cellar which currently houses the washing machine and freezer and has excellent storage space. Herndon Road is quietly situated off East Hill, within a walk of Wandsworth Town mainline station which has services to Waterloo. The immediate area provides an excellent choice of restaurants, bars & local shops, with more extensive shopping & leisure facilities available in nearby Southside.
Refundable Holding deposit | Capped at 1 weeks rent |
Security Deposit | Capped at 5 weeks rent for annual rental under £50,000, or 6 weeks rent for annual rental over £50,000 |
Rent | The agreed monthly rent |
Early termination charge | Not exceeding the landlord’s financial losses |
Late payment of rent | Interest of 3% above BoE base rate for each day the rent is late, once it is 14 days overdue |
Tenancy amendment (where applicable) | £50 |
Replacement keys | Reasonable costs or give the tenant the option to purchase themselves. |
Utilities, council tax, communication services, TV Licence etc | Tenants own responsibility unless otherwise stated in contract |
Client Money Protection SchemeMembership details | Propertymark Client Money Protection Scheme |
Property Redress Scheme Membership details | The Property Ombudsman |
IMPORTANT NOTICE
Descriptions of the property are subjective and are used in good faith as an opinion and NOT as a statement of fact. Please make further specific enquires to ensure that our descriptions are likely to match any expectations you may have of the property. We have not tested any services, systems or appliances at this property. We strongly recommend that all the information we provide be verified by you on inspection, and by your Surveyor and Conveyancer.









